BAŞKAN
KURUMSAL
PROJELERİMİZ
BİRİMLERİMİZ
İLETİŞİM
E-İşlemler
İlanlar
Anasayfa
İlanlar
Hızlı Menü
İhaleler
İlanlar
A-
A+
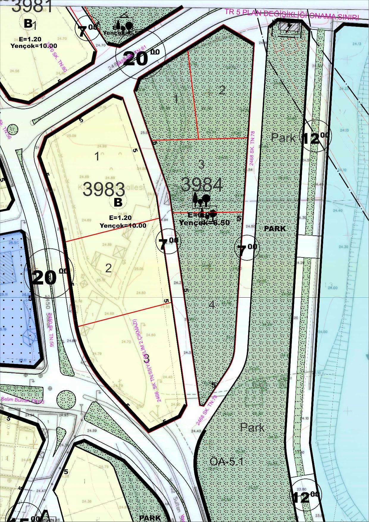
Mersin ili, Tarsus ilçesi, Şehitisak mahallesi, 3983 ada 2 ve 3 parseller ve çevresine ilişkin 1/1000 ölçekli Uygulama İmar Planı değişikliği
18 Aralık 2025 08:00
Dosyalar
Askı İlan Tutanağı
İNDİR
Belediye Meclis Kararı
İNDİR
Mevcut 1/1000 UİP
İNDİR
Teklif 1/1000 UİP
İNDİR
UİP Plan Açıklama Raporu
İNDİR
Son Eklenen İlanlar
Mersin İli, Toroslar İlçesi, Karaisalı Mahallesi, 1276, 1277 Parseller ve çevresine ilişkin 1/5000 ölçekli Nazım İmar Planı değişikliği ve 1/1000 ölçekli Uygulama İmar Planı değişikliği teklifi
30 Ocak 2026 08:00
Anamur İlçesi, Ören Mahallesi, 308 ada 7 parsel ve 308 ada 12 numaralı taşınmazın batısına ilişkin 1/5000 Ölçekli Nazım İmar Planı ve 1/1000 ölçekli Uygulama İmar Planı değişikliği teklifi
29 Ocak 2026 08:00
Silifke İlçesi, Taşucu Mahallesi, 287 ada 1 parsel numaralı taşınmaza ilişkin 1/1000 ölçekli Uygulama İmar Planı değişikliği teklifi
29 Ocak 2026 08:00
Mersin ili, Tarsus ilçesi, Kemalpaşa mahallesi 435 ada 17 parsele ilişkin 1/5000 ölçekli Nazım İmar Planı değişikliği ve 1/1000 ölçekli Uygulama İmar Planı değişikliği,
28 Ocak 2026 08:00
Yenişehir İlçesi, Menteş Mahallesi, 13015 ada 11 parsel numaralı taşınmaza ilişkin 1/5000 Ölçekli Nazım İmar Planı değişikliği teklifi
28 Ocak 2026 08:00
Akdeniz-Toroslar-Yenişehir-Mezitli İlçeleri 2. Etap 1. Bölge 1/5000 Ölçekli Nazım İmar Planı Toroslar 13. Etap Nazım İmar Planı Değişikliği teklifi
27 Ocak 2026 08:00
Mersin İli, Toroslar İlçesi, Çopurlu Mahallesi, 117 Ada 1 ve 4 Parsellere ilişkin 1/5000 ölçekli Nazım İmar Planı değişikliği teklifi
27 Ocak 2026 08:00
Mersin ili, Erdemli ilçesi, Yüksek mahallesi 100 ada 42 parsele ilişkin 1/5000 ölçekli Nazım İmar Planı ve 1/1000 ölçekli Uygulama İmar Planı değişikliği
26 Ocak 2026 08:00
Mezitli İlçesi, Tece Mahallesi, 11375 ada 5 parsel ve 228 ada 2 parsel numaralı taşınmazlara ilişkin 1/5000 Ölçekli Nazım İmar Planı ve 1/1000 ölçekli Uygulama İmar Planı değişikliği teklifi
23 Ocak 2026 08:00
"Akdeniz-Toroslar-Yenişehir-Mezitli İlçeleri 2. Etap 1. Bölge 1/5000 Ölçekli İlave ve Revizyon Nazım İmar Planı 151. Cadde Doğusu TCDD Kuzey Kesimi Revizyonu" teklifi
19 Ocak 2026 08:00
Kapat
Mersin Büyük Şehir Belediyesi
E-İşlemler
Tüm Hizmetlerimiz
Vergi Borcu Öğrenme
Beyanlarınız
Tahakkuklarınız
Akıllı Şehir Platformu
AYKOME Kazı Ruhsatlarına Giriş
Kütüphane Kitap Sorgulama
Hibe Çağrıları
Personel Bordro Sorgulama
Portal
Başvuru Merkezi
Hal Fiyatları
İlanlar
İhaleler
Dökümanlar
Kurumsal e-posta
QDMS
ENSEMBLE
CİMER
Kadın Dostu Kentler
Tarımsal Erken Uyarı Sistemi
Personel Öneri Sistemi
Bulut KBS
İç Tetkikçi Değerlendirme Formu
Belediye Akademisi Uzaktan Eğitim Portalı